Lassana Konzorcij
Prenova salona Lassana v Konzorciju
Naročnik: Lassana d.d.
avtorji: Ariana Furlan Prijon u.d.i.a.
Lokacija: Slovenska cesta 27, 1000 Ljubljana
leto prenove: 2013
velikost objekta: 145m2
objave: Arcadia Lightwear Newsletter, avgust 2013
fotografije: Lassana d.d. - Goclick
Prenova frizerskega salona v Konzorciju predstavlja pomemben korak v dolgoročni strategiji prenove verige salonov Lassane d.d. Ta znana veriga ljubljanskih salonov se je v letu 2008 odločila za dolgoročni proces prenove salonov. Takrat nastavljen koncept prenove je nastavil estetiko, ki je podrejena potrebam ljudi, skupnosti, okoliškemu prostoru, lokalnemu urbanemu kontekstu in obstoječim objektom. Namesto nekritično modne prenove, ki bi vizualno poenotila verigo, so zgodba Lassane, prenove, ki niso revolucije, temveč oblikovanje, kjer je vsak poseg eden od korakov v dolgoročni strategiji. Ekonomski razmislek na dolgi rok, kot ga prakticira podjetje, ima konkretne vizualne rezultate – izogibanje modnosti prostorskih rešitev, občutljivost do uporabnikov, zaposlenih, objektov, urbanega konteksta, okolice,... Salon v Konzorciju je največji salon Lassane in kot tak ter zaradi svoje centralne lokacije v veliki meri nosilec identitete podjetja.
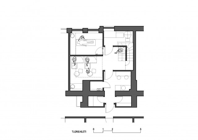
Ključna funkcionalna poteza prenove je oblikovanje enotnega prostora v pritlični etaži salona. Prostor tako ni več fizično ločen na ženski in moški del. V osrednjem delu salona so zbrane povezovalni sklopi – sprejemni pult, prodajna vitrina in večnamenski pult. Delovna mesta so razporejena ob bočnih stenah prostora. V sklopu prenove so bili preurejeni tudi kletni prostori kjer se nahajata kozmetični in pedikerski del salona ter pomožni prostori.
Uporabljene barve in materiali so nevtralni, zadržani in nevpadljivi – bela in svetlo rjava, usnje in hrastov furnir. Notranjost tako predstavlja diskretno ozadje življenju v salonu. Svetla in izčiščena notranjost se hkrati učinkovito povezuje z javnim prostorom pred lokalom . Prostor pred Konzorcijem je eden najbolj živahnih javnih prostorov v mestu, nanj pa se salon odpira preko velike celostenske zasteklitve, nagovarja ga z veliko svetlečo podobo in LCD displayem – skratka ustrezno najbolj metropolitanskemu mestnemu ambientu.

.jpg)
.jpg)

.jpg)
.jpg)
.jpg)
.jpg)
.jpg)

